FRP-DS-198667 | Dom Sprzedaż
Opis
NA SPRZEDAŻ – DOM WOLNOSTOJĄCY W STANIE SUROWYM ZAMKNIĘTYM + ELEKTRYKA + OCIEPLENIE
Tarnówka, powiat złotowski
Na sprzedaż oferujemy dom jednorodzinny parterowy o powierzchni użytkowej 110,24 m² + garaż w bryle budynku 19,42 m², usytuowany na działce o powierzchni 1000 m² (własność).
Stan surowy zamknięty PLUS:
- Wykonana instalacja elektryczna
- Budynek ocieplony styropianem
- Okna oraz drzwi zewnętrzne zamontowane
LOKALIZACJA:
Tarnówka – spokojna, malownicza wieś w powiecie złotowskim, zaledwie 12 km od Złotowa. Nieruchomość położona w cichej i zielonej okolicy – w sąsiedztwie pól, łąk i lasów – idealna dla osób ceniących spokój i kontakt z naturą.
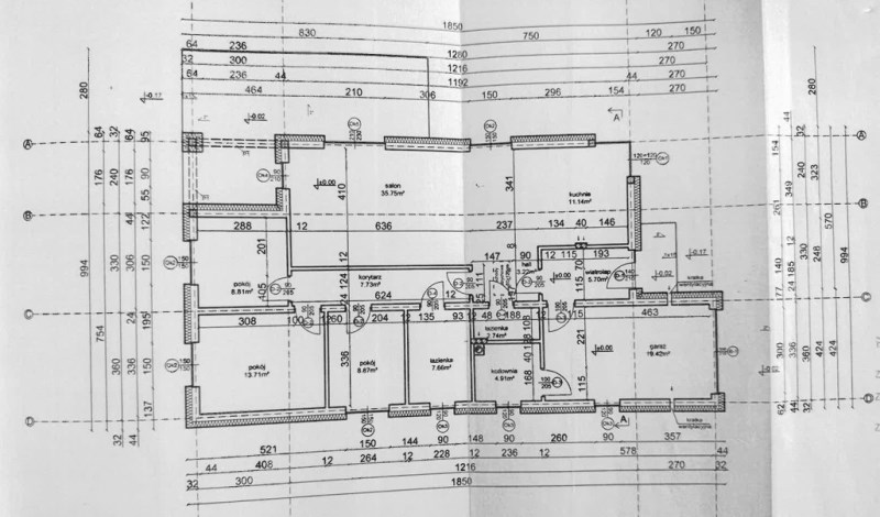
UKŁAD DOMU:
- Salon z aneksem kuchennym – 46,89 m² (z wyjściem na ogród
- Pokój – 8,81 m²
- Pokój – 13,71 m²
- Pokój – 8,87 m²
- Łazienka – 7,66 m²
- WC – 2,74 m²
- Korytarz – 7,73 m²
- Hol – 3,22 m²
- Wiatrołap – 5,70 m²
- Kotłownia – 4,91 m²
- Garaż – 19,42 m²
TECHNOLOGIA WYKONANIA:
- Budynek murowany, parterowy
- Dach dwuspadowy pokryty dachówką betonową
- Ogrodzenie działki – siatka
- Dojazd drogą gminną
MEDIA:
- Prąd
- Woda i kanalizacja – w drodze
Nieruchomość idealna dla rodziny w spokojnej, wiejskiej okolicy z dobrym dojazdem do Złotówa (12km).
Informacje ogólne
Status
Aktualna
Lokalizacja
wielkopolskie, złotowski, Tarnówka
Rodzaj budynku
Pow. całkowita [m2]
129.66
Ilość pokoi
4
Cena
419 000 zł
Data wprowadzenia
2025-10-09
Data aktualizacji
2025-10-09
Informacje o nieruchomości
Ilość pięter w budynku
1
Zagospodarowanie działki
Niezagospodarowana
Ukształtowanie działki
płaska
Kształt działki
prostokąt
Ogrodzenie działki
siatka
Technologia budowlana
suporeks
Okna
PCV 3 szyby, ciepły montaż
Instalacje
ELEKTRYCZNA
Rodzaj domu
wolnostojący
Pokrycie dachu
dachówka betonowa
Powierzchnia użytkowa
110,2400
Podpiwniczenie
Nie
Stan budynku
do wykończenia
Garaż
w bryle
Gaz
brak
Woda
w ulicy
Kanalizacja
w pobliżu
Prąd
na działce
Dojazd
asfalt
Pomieszczenia
Ilość pokoi
4
Wysokość pomieszczeń
0
Mapa
Oddział
Oddział
ESC sp. z o.o.
Adres
ul. Bydgoska 153, 64-920 Piła
Telefon
67 353-30-30
FAX
67 353-30-30
Strona WWW
www.esc.pila.pl
E-mail






















