Blok Lotnicza

Opis inwestycji
Z ogromną przyjemnością pragniemy Państwa poinformować, że po raz kolejny przystępujemy do realizacji inwestycji budynków wielorodzinnych. Będzie to inwestycja jakiej jeszcze nie było, ze względu na niepowtarzalną lokalizację. Nie mamy wątpliwości, że jest to coś na co Nasi Klienci czekali od dawna.
Lokalizacja to w tym przypadku największy atut naszej inwestycji, która wielu Naszym Klientom jest dobrze znana. Jest to miejsce wyjątkowe, z przepięknym widokiem, a jednocześnie w cichym i spokojnym miejscu. Osiedle Górne zawsze cieszyło się największym zainteresowanie dlatego też tak wielu naszych klientów, czeka właśnie na rozpoczęcie budowy. W pobliżu znajdują się również markety spożywcze, uczelnia wyższa, przystanek autobusowy, ośrodki zdrowia, przedszkole, szkoła oraz łatwy dostęp do form aktywnego wypoczynku: ścieżek rowerowych, dukt spacerowych, parku miejskiego sprawiają, że ta okolica stała się najbardziej pożądanym miejscem dla osób poszukujących mieszkań na rynku pierwotnym.
Tym razem zdecydowaliśmy się na nieco większą inwestycję, która docelowa składać się będzie z kilku budynków wielorodzinnych. W pierwszym 5 kondygnacyjnym budynku oddamy do Państwa dyspozycji aż 90 mieszkania, garaże oraz piwnice. W budynku znajdować się będą lokale mieszkalne o powierzchni od 36 do ponad 68 metrów kwadratowych, a na ostatniej kondygnacji znalazły się mieszkania 87m2, 93m2 bądź 120 metrowe z przepięknym widokiem na panoramę miasta oraz 18 metrowymi tarasami. Mieszkania na parterze dostępne będą z niewielkimi ogródkami przynależnymi do każdego z mieszkań.
Wnętrza
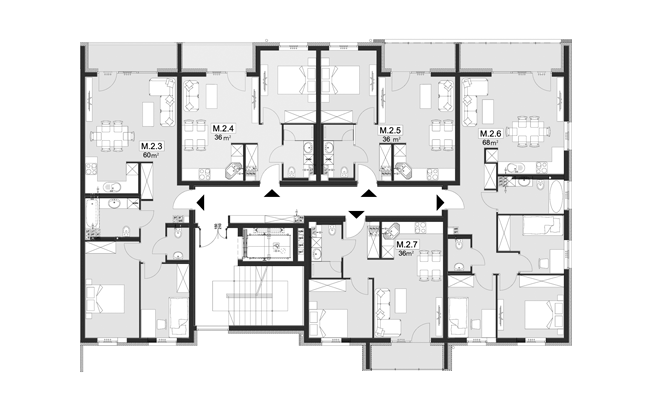
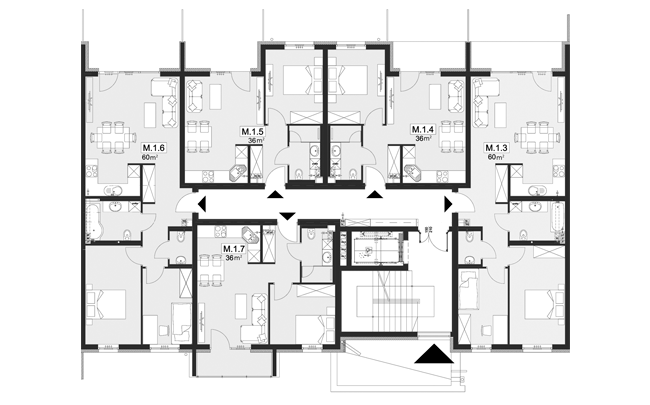
Rzuty mieszkań
Parter
Segment A
Segment B
Segment C
Segment D
I Piętro
Segment A
Segment B
Segment C
Segment D
II Piętro
Segment A
Segment B
Segment C
Segment D
III Piętro
Segment A
Segment B
Segment C
Segment D
IV Piętro
Segment A
Segment B
Segment C
Segment D
Plan zasgospodarowania
