FRP-DS-198768 | Dom Sprzedaż
Opis
Dom jednorodzinny – Prawomyśl, gm. Kaczory
Nowy, komfortowy dom z dużą działką – idealny dla osób szukających spokoju blisko miasta
Na sprzedaż oferuję nowoczesny dom jednorodzinny położony w Prawomyśli – spokojnej, zadbanej wsi w gminie Kaczory, z bardzo dobrym dojazdem do Piły, Kaczor i Chodzieży. Nieruchomość została wybudowana w drugiej połowie 2023 roku i jest gotowa do wprowadzenia się bez jakichkolwiek nakładów.
PARAMETRY NIERUCHOMOŚCI
-
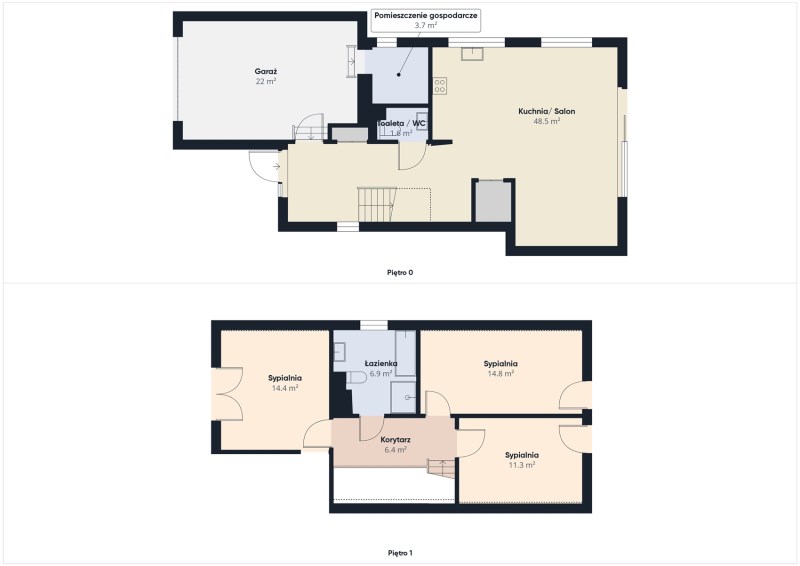
Powierzchnia użytkowa domu: ok. 100 m²
-
Garaż: 22 m² (z przyłączem siły, możliwość montażu ładowarki do samochodu elektrycznego)
-
Kotłownia: 5 m²
-
Działka: 3 800 m² – teren zróżnicowany, z dużą skarpą, dający duże możliwości aranżacyjne
STANDARD I WYKOŃCZENIE
Dom został zbudowany z myślą o komforcie, energooszczędności i trwałości:
-
ogrzewanie gazowe (piec dwufunkcyjny + zasobnik wody 120L Viessmann)
-
ogrzewanie podłogowe w całym domu oraz na 1/2 powierzchni garażu
-
stacja uzdatniania wody – idealna przy czarnej armaturze: brak kamienia, miękka woda, mniejsza awaryjność sprzętów
-
stolarka okienna trzyszybowa
-
rolety antywłamaniowe
-
dach planowany, ocieplenie: 20 cm styropianu na ścianach, 23 cm w podłodze
-
posadzka anhydrytowa
-
w kuchni płyta indukcyjna + siła
-
światłowód, kanalizacja
W cenie pozostaje pełne wyposażenie domu oraz praktyczne dodatki, takie jak:
-
automatyczna kosiarka z systemem zabezpieczeń,
-
szopka narzędziowa.
LOKALIZACJA
Prawomyśl to kameralna miejscowość otoczona naturą, a jednocześnie świetnie skomunikowana z miastem.
-
Kaczory – 6 km
-
Piła – 18 km
-
Chodzież – 13 km
Wieś działa aktywnie – w okresie letnim organizowane są zajęcia i animacje dla dzieci. Autobus szkolny odbiera dzieci z przystanku we wsi. To idealna propozycja dla osób, które chcą mieszkać w cichej, spokojnej okolicy, ale nie chcą rezygnować z wygody codziennego dojazdu do miasta.






















