FRP-DS-199198 | Dom Sprzedaż
Opis
Trzcianka - Dom wolnostojący z ogromnym salonem na działce o pow. 541 m2
Z przyjemnością prezentujemy przestronny, starannie utrzymany dom o powierzchni użytkowej 179,5 m² z garażem dla 2 aut, położony w niezwykle atrakcyjnej, spokojnej lokalizacji – w najbliższym sąsiedztwie stawu rybnego, z możliwością wędkowania.
Najważniejsze atuty nieruchomości:
- dom wolnostojący z piętrem, piwnicą oraz podwójnym garażem w bryle budynku
- kameralna, cicha okolica z dala od miejskiego zgiełku
- prywatny staw rybny tuż przy nieruchomości
- bliskość infrastruktury: ok. 100 m przedszkole i plac zabaw, ok. 500 m Biedronka i Dino
- ogród z altaną oraz starannie zagospodarowaną przestrzenią wokół domu
- system alarmowy z możliwością zdalnego sterowania
- ogrodzenie żeliwne z bramą i furtką sterowaną pilotem/domofonem
- instalacje: prąd, woda, gaz, kanalizacja, internet, telefon
- aktualne przeglądy: elektryczny (06.2024), piec gazowy
- świadectwo energetyczne (06.2024): EP = 61,93 kWh/m²
Standard i technologia:
- ocieplenie z wełny mineralnej, elewacja z sidingu amerykańskiego
- centralny filtr do zmiękczania wody
- klimatyzacja LG multi-split (z możliwością rozbudowy)
- kominek z rozprowadzeniem ciepła
- instalacje miedziane (elektryczna i C.O.)
- ogrzewanie gazowe
Strefa relaksu:
- jacuzzi z automatycznymi programami w łazience na piętrze
- przestronne, jasne wnętrza z dużymi przeszkleniami
- dodatkowa przestrzeń do przechowywania i rekreacji (piwnica ~90 m²)
Układ pomieszczeń pomieszczeń:
Parter :- poziom 0
- salon z wyjściem do ogrodu o pow. 25,6 m2
- 4 sypialnie, o pow.. 12,6 m2 / 12,5 m2 / 14,8 m2 / 15 m2
- łazienka o pow. 5,5 m2 z wanną i prysznicem
- WC o pow. 1,3 m2
- garderoba o pow. 1,4 m2
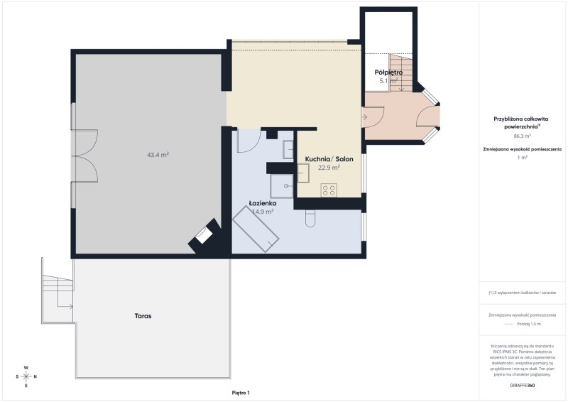
Piętro - strefa dzienna - poziom 1
- ogromny salon o pow. 43,4 m² z wielkimi przeszkleniami i balkonem
- kuchnia z jadalnią o pow. 22,9 m2,
- duża łazienka z jacuzzi o pow. 14,9 m2
Piwnica - poziom -1
- kotłownia,
- warsztat,
- suszarnia,
- spiżarnia,
- przestrzeń rekreacyjna ze stołem do ping ponga
Garaż podwójny + dodatkowa przestrzeń nad garażem (możliwa adaptacja np. na taras)
To idealna propozycja dla osób szukających komfortu, przestrzeni, prywatności oraz kontaktu z naturą, przy jednoczesnym dostępie do infrastruktury. miejskiej
Cena do rozsądnej negocjacji.
ZAPRASZAM SERDECZNIE NA PREZENTACJĘ
Powyższy opis ma charakter informacyjny i nie stanowi oferty w rozumieniu przepisu kodeksu cywilnego.. Udzielamy bezpłatnej pomocy w uzyskaniu kredytu hipotecznego na zakup nieruchomości z oferty naszego biura.






























