FRP-HS-198868 | Hala Sprzedaż
Opis
Szydłowo
Przedmiotem oferty jest działka gruntu o pow. 4834m2 zabudowana halą magazynową (w trakcie budowy)
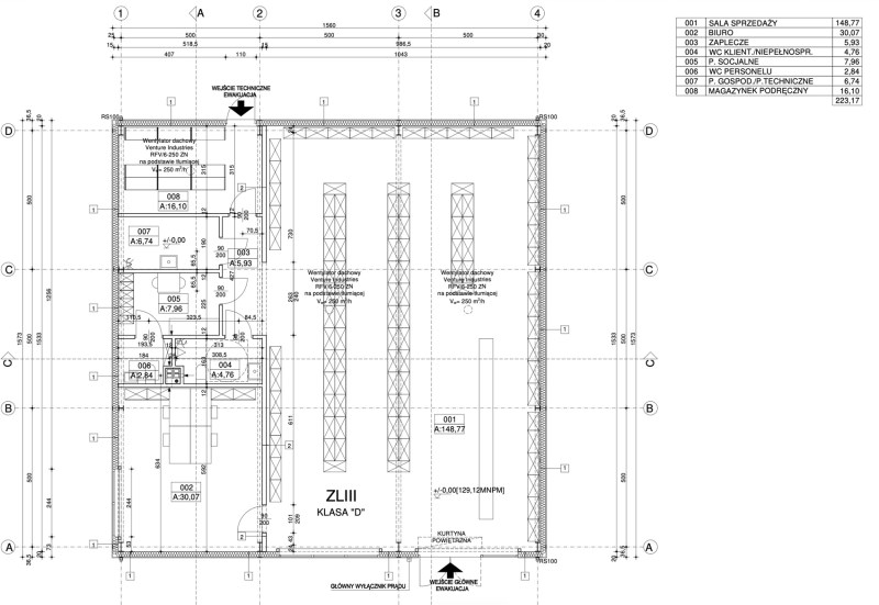
Hala magazynowa konstrukcji stalowej o pow. 223,17m2. Według projektu składająca się następujących pomieszczeń:
Media: (prąd, woda, kanalizacja, gaz) przy działce
Działka o pow. 4834m2 w całości ogrodzona.
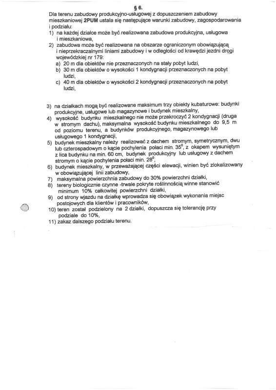
Teren objęty jest aktualnym planem zagospodarowania przestrzennego - teren zabudowy produkcyjno-usługowej z dopuszczeniem zabudowy mieszkaniowej.
Bardzo dobra lokalizacja - bezpośrednio przy drodze wojewódzkiej nr 179
Przedmiotem oferty jest działka gruntu o pow. 4834m2 zabudowana halą magazynową (w trakcie budowy)
Hala magazynowa konstrukcji stalowej o pow. 223,17m2. Według projektu składająca się następujących pomieszczeń:
- sala sprzedaży - 148,77m2
- biuro - 30,07m2
- zaplecze - 5,93m2
- wc klient - 4,76m2
- pom.socjalne - 7,96m2
- wc personelu - 2,84m2
- pom.gospodarcze/techniczne - 6,74m2
- magazynek podręczny - 16,10m2
Media: (prąd, woda, kanalizacja, gaz) przy działce
Działka o pow. 4834m2 w całości ogrodzona.
Teren objęty jest aktualnym planem zagospodarowania przestrzennego - teren zabudowy produkcyjno-usługowej z dopuszczeniem zabudowy mieszkaniowej.
Bardzo dobra lokalizacja - bezpośrednio przy drodze wojewódzkiej nr 179
Informacje ogólne
Status
Aktualna
Lokalizacja
wielkopolskie, pilski, Szydłowo (gw), Szydłowo
Rodzaj budynku
Pow. całkowita [m2]
223.17
Cena
775 000 zł
Data wprowadzenia
2025-12-08
Data aktualizacji
2026-02-19
Informacje o nieruchomości
Ukształtowanie działki
lekko nachylona
Kształt działki
prostokąt
Rok budowy
2025
Ilość pokoi
0
Wysokość pomieszczeń
0
Mapa
Oddział
Oddział
ESC sp. z o.o.
Adres
ul. Bydgoska 153, 64-920 Piła
Telefon
67 353-30-30
FAX
67 353-30-30
Strona WWW
www.esc.pila.pl
E-mail













