FRP-LS-198968 | Lokal Sprzedaż
Opis
Na sprzedaż lokal usługowy zlokalizowany w Pile przy ulicy Roosevelta. Lokal znajduje się na parterze budynku, co zapewnia łatwy dostęp dla klientów oraz doskonałą widoczność. Duże witryny od strony ulicy nie tylko efektownie doświetlają wnętrze, ale również stwarzają idealne warunki do ekspozycji oferty handlowej lub usługowej.
Atrakcyjna lokalizacja w tętniącej życiem części miasta gwarantuje duży ruch pieszy i samochodowy, co przekłada się na potencjalne zainteresowanie klientów.
To znakomita okazja dla inwestorów poszukujących gotowego do użytku miejsca na biznes oraz idealny wybór dla osób, które chcą prowadzić działalność handlową lub usługową w prestiżowej lokalizacji.
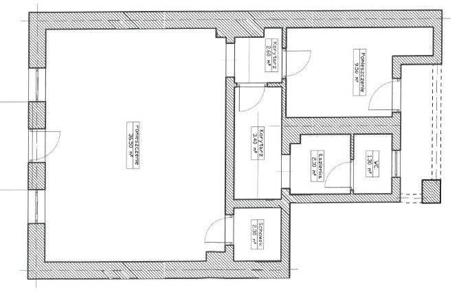
Szczegóły Lokalu:
Sala Główna (37,33 m2): Przestronna przestrzeń idealna na działalność handlową, biurową czy usługową.
Mała Salka/pomieszczenie konferencyjne (8,76 m2): Doskonałe miejsce do organizacji spotkań czy prezentacji.
Kuchnia, pomieszczenie socjalne (7,56 m2): Wyposażone w niezbędne urządzenia, umożliwiające przygotowanie posiłków i przerwę w pracy.
Łazienka z WC (1,25 m2): W pełni wyposażona, zapewniająca komfort użytkownikom.
Wyposażenie i udogodnienia:
Lokal gotowy do użytku z wyposażeniem i częściowym umeblowaniem wliczonymi w cenę zakupu.
Dostęp do mediów: prąd, woda, centralne ogrzewanie gazowe.
Instalacja alarmowa z kamerami gwarantująca bezpieczeństwo lokalu.
Dodatkowe atuty:
Doskonała lokalizacja, gwarantująca łatwy dostęp i widoczność dla klientów,
Miejsce parkingowe na zamykanym na pilota terenie,
Lokal dostępny od zaraz, co umożliwia szybki start działalności.
Zapraszamy do kontaktu, o potencjale tej oferty trzeba przekonać się osobiście!
Atrakcyjna lokalizacja w tętniącej życiem części miasta gwarantuje duży ruch pieszy i samochodowy, co przekłada się na potencjalne zainteresowanie klientów.
To znakomita okazja dla inwestorów poszukujących gotowego do użytku miejsca na biznes oraz idealny wybór dla osób, które chcą prowadzić działalność handlową lub usługową w prestiżowej lokalizacji.
Szczegóły Lokalu:
Sala Główna (37,33 m2): Przestronna przestrzeń idealna na działalność handlową, biurową czy usługową.
Mała Salka/pomieszczenie konferencyjne (8,76 m2): Doskonałe miejsce do organizacji spotkań czy prezentacji.
Kuchnia, pomieszczenie socjalne (7,56 m2): Wyposażone w niezbędne urządzenia, umożliwiające przygotowanie posiłków i przerwę w pracy.
Łazienka z WC (1,25 m2): W pełni wyposażona, zapewniająca komfort użytkownikom.
Wyposażenie i udogodnienia:
Lokal gotowy do użytku z wyposażeniem i częściowym umeblowaniem wliczonymi w cenę zakupu.
Dostęp do mediów: prąd, woda, centralne ogrzewanie gazowe.
Instalacja alarmowa z kamerami gwarantująca bezpieczeństwo lokalu.
Dodatkowe atuty:
Doskonała lokalizacja, gwarantująca łatwy dostęp i widoczność dla klientów,
Miejsce parkingowe na zamykanym na pilota terenie,
Lokal dostępny od zaraz, co umożliwia szybki start działalności.
Zapraszamy do kontaktu, o potencjale tej oferty trzeba przekonać się osobiście!
Informacje ogólne
Status
Aktualna
Lokalizacja
wielkopolskie, pilski, Piła
Rodzaj budynku
kamienica
Pow. całkowita [m2]
57.70
Piętro
parter
Cena
349 000 zł
Data wprowadzenia
2026-01-12
Data aktualizacji
2026-01-28
Informacje o nieruchomości
Stan lokalu
do odświeżenia
Przeznaczenie lokalu
handlowo-usługowy
Okna
PCV
Powierzchnia użytkowa
57,7000
Woda
ciepła - piecyk gazowy
Ogrzewanie
C.O. GAZOWE
Ilość pokoi
0
Wysokość pomieszczeń
0
Oddział
Oddział
ESC sp. z o.o.
Adres
ul. Bydgoska 153, 64-920 Piła
Telefon
67 353-30-30
FAX
67 353-30-30
Strona WWW
www.esc.pila.pl
E-mail






