FRP-BS-199049 | Obiekt Sprzedaż
Opis
GOTOWA BAZA DLA FIRMY INSTALACYJNEJ – KOMPLEKS BUDYNKÓW + DZIAŁKA 3712 m² + DZIAŁAJĄCY BIZNES
Na sprzedaż nieruchomość komercyjna stanowiąca w pełni funkcjonującą bazę operacyjną firmy z branży instalacyjnej wodno-kanalizacyjnej, położona w obszarze koncentracji zabudowy produkcyjno-usługowej w Pile, przy ul. Przemysłowej 9a.
Oferta skierowana do inwestora branżowego lub przedsiębiorcy, który poszukuje:
-
gotowej infrastruktury do prowadzenia działalności,
-
dużej działki z możliwością dalszego rozwoju,
-
lub przejęcia działającego biznesu wraz z zapleczem operacyjnym.
DZIAŁKA – 3712 m² GRUNTU W LOKALIZACJI PRZEMYSŁOWEJ
Nieruchomość obejmuje działkę o powierzchni 3712 m², co w realiach miejskich stanowi znaczący atut operacyjny.
Duża powierzchnia gruntu zapewnia:
-
pełną logistykę dojazdu i manewrowania,
-
utwardzone place składowe,
-
parking dla klientów i pracowników,
-
możliwość dalszej rozbudowy lub reorganizacji zabudowy,
-
rezerwę inwestycyjną.
Teren ogrodzony, monitorowany, z bezpośrednim dojazdem drogą asfaltową.
ZABUDOWA – 357,47 m² GOTOWEJ INFRASTRUKTURY
Na nieruchomości znajduje się łącznie 357,47 m² powierzchni użytkowej, obejmującej:
1. Zespół budynków magazynowo-biurowych (zaplecze operacyjne):
* budynek biurowy o pow. 25,65 m²
* hala magazynowa o pow. 179,59 m²
* pawilon o pow. 70,57 m²
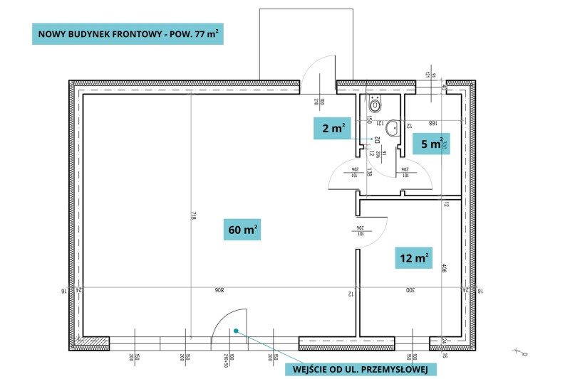
2. Nowy budynek frontowy o funkcji usługowo-handlowej – pow. 77 m²
Budynek może pełnić rolę:
-
biura obsługi klienta,
-
części handlowej,
-
showroomu,
-
siedziby firmy.
To element zwiększający wartość nieruchomości – pozwala prowadzić działalność wizerunkową bez konieczności dodatkowych nakładów.
INFRASTRUKTURA
Pełne uzbrojenie:
-
energia elektryczna,
-
woda,
-
kanalizacja,
Nieruchomość nie wymaga nakładów infrastrukturalnych – jest gotowa do bieżącego użytkowania.
PRZEZNACZENIE
Brak obowiązującego MPZP.
W studium teren przeznaczony pod: usługi oraz działalność produkcyjną.
Szeroki zakres dopuszczalnych funkcji zwiększa elastyczność inwestycyjną i minimalizuje ryzyko planistyczne.
STRUKTURA PRAWNA
-
Działka - prawo użytkowania wieczystego do 05.12.2089 r.
-
Budynki - własność..
OPCJA NR 2 – PRZEJĘCIE CAŁEGO PRZEDSIĘBIORSTWA
Nieruchomość może zostać nabyta w formule rozszerzonej – wraz z funkcjonującym przedsiębiorstwem z branży wodno-instalacyjnej.
Wariant inwestycyjny obejmuje:
-
przejęcie aktywów operacyjnych, min. maszyny i urządzenia, narzędzia instalacyjne, wyposażenie magazynu, samochody firmowe,
-
bazę klientów,
-
wypracowaną pozycję rynkową,
-
know-how,
-
zaplecze magazynowe i biurowe,
-
ciągłość działalności bez przestoju.
To nie jest sprzedaż „lokalu”.
To możliwość przejęcia gotowego, funkcjonującego organizmu gospodarczego.
Szczegóły finansowe i organizacyjne udostępniane po podpisaniu NDA.
PROFIL NABYWCY
-
inwestor branżowy (HVAC / instalacje sanitarne / budownictwo),
-
hurtownia techniki instalacyjnej,
-
podmiot logistyczny,
-
przedsiębiorca poszukujący zaplecza operacyjnego z potencjałem wzrostu,
KLUCZOWE WARTOŚCI INWESTYCYJNE
- duża działka z rezerwą rozwojową
- reprezentacyjny budynek frontowy
- zaplecze magazynowo-biurowe
- pełne uzbrojenie
- przemysłowa lokalizacja bez konfliktu funkcji
- możliwość przejęcia funkcjonującego biznesu
* w opcji zakupu pełnej nieruchomości - 2.303.000 zł netto
* w opcji zakupu nieruchomości wraz ze sprzętem - 2.303.000 + 737.500 zł netto



























